神田金子ビルのテナント募集中区画
| 階数 | 面積 | 賃料(共益費含む) | 保証金 | 入居可能日 | 検討リスト | 詳細 |
|---|---|---|---|---|---|---|
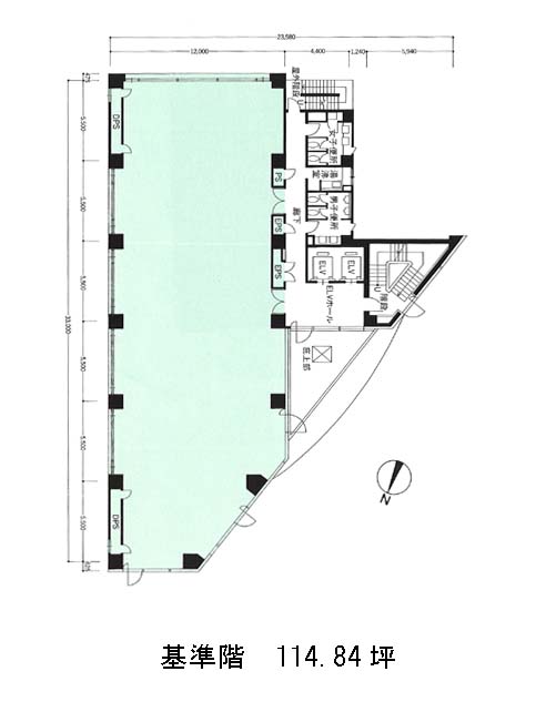
| 6 | 114.84坪 | 応相談(応相談) | 応相談 | 2026年5月下旬 |
…新着物件
アクセス
神田金子ビルの物件情報
神田金子ビル(千代田区神田東松下町)は岩本町駅(A1番出口)から徒歩3分の賃貸オフィスです。1990年竣工で、新耐震基準に適合した地上7階建てのビルです。エントランスやエレベーターホールは白を基調としていて明るい印象を与えてくれます。基準階フロアは約110坪、フリーアクセス床となっているので、配線しやすいフロアです。トイレは男女別の設置となっています。駐車場が併設されていて、社用車を使用する場合には便利でしょう。徒歩圏内にコンビニエンスストア、郵便局がございます。飲食店も多数営業しております。神田金子ビルは岩本町駅(A1番出口)の他に神田駅(5番出口)徒歩4分、秋葉原駅(A1番出口)徒歩6分で利用も可能です。

