3階は現在募集がありません
1フロア募集区画あり

神田金子ビル 3階

前の写真 次の写真

物件概要

物件番号

410-00036-30

物件名

神田金子ビル

所在地

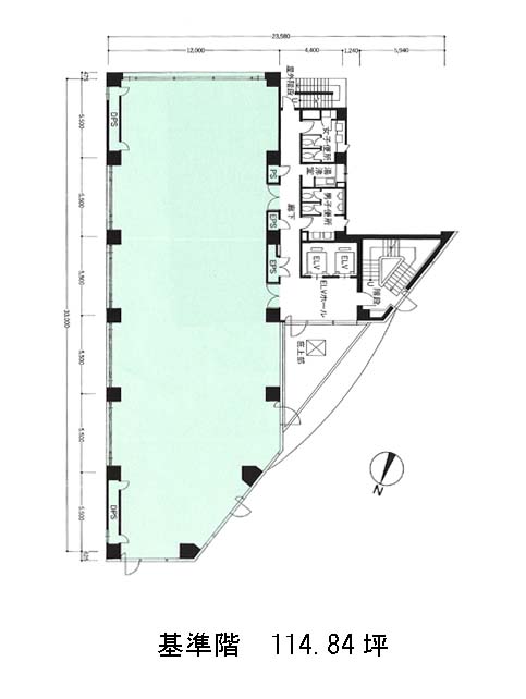
面積

114.84坪

賃料(共益費含)


入居日

募集終了

保証金

礼金

更新料

償却費

竣工

1990年12月

構造

SRC

規模

地上7階/地下1階

トイレ

男女別

空調

個別空調

エレベーター

セキュリティ

駐車場

耐震

新耐震基準

基準階天井高

2600mm

空室延床面積

114.84坪

最寄駅

情報更新日

2026/04/07

神田金子ビルのテナント募集中区画

階数 面積 賃料(共益費含む) 保証金 入居可能日 検討リスト 詳細
6 114.84坪 応相談(応相談) 応相談 2026年5月下旬
…新着物件

神田金子ビルのアクセス

神田金子ビルの物件情報

神田金子ビル(千代田区神田東松下町)は岩本町駅(A1番出口)から徒歩3分の賃貸オフィスです。
1990年竣工で、新耐震基準に適合した地上7階建てのビルです。エントランスやエレベーターホールは白を基調としていて明るい印象を与えてくれます。基準階フロアは約110坪、フリーアクセス床となっているので、配線しやすいフロアです。トイレは男女別の設置となっています。駐車場が併設されていて、社用車を使用する場合には便利でしょう。徒歩圏内にコンビニエンスストア、郵便局がございます。飲食店も多数営業しております。
神田金子ビルは岩本町駅(A1番出口)の他に神田駅(5番出口)徒歩4分、秋葉原駅(A1番出口)徒歩6分で利用も可能です。

近隣のエリア・駅から探す