U biz 神田千桜 2階
物件概要
物件番号
410-00047-72物件名
U biz 神田千桜所在地
- 東京都千代田区神田東松下町31-1
- アクセスマップ
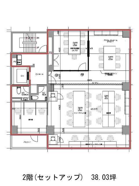
面積
38.03坪賃料(共益費含)
月額1,129,491円(29,700円/坪)
入居日
2025年12月下旬保証金
2,053,620円礼金
なし更新料
新1ケ月償却費
1ケ月竣工
1988年8月構造
RC規模
地上7階/地下1階トイレ
男女別空調
個別空調エレベーター
有セキュリティ
有駐車場
有耐震
新耐震基準基準階天井高
2500mm空室延床面積
59.03坪情報更新日
2025/10/15U biz 神田千桜のテナント募集中区画
| 階数 | 面積 | 賃料(共益費含む) | 保証金 | 入居可能日 | 検討リスト | 詳細 |
|---|---|---|---|---|---|---|
| 2 | 38.03坪 | 1,129,491円/月(29,700円/坪) | 205万円 | 2025年12月下旬 | ||
| 7 | 21.00坪 | 623,700円/月(29,700円/坪) | 113万円 | 2026年2月中旬 |
…新着物件
アクセス
U biz 神田千桜の物件情報
U biz 神田千桜(千代田区神田東松下町)は岩本町駅(A1番出口)から徒歩2分の賃貸オフィスです。U biz 神田千桜は岩本町駅(A1番出口)の他に神田駅(3番出口)徒歩5分、秋葉原駅(5番出口)徒歩6分で利用も可能です。

