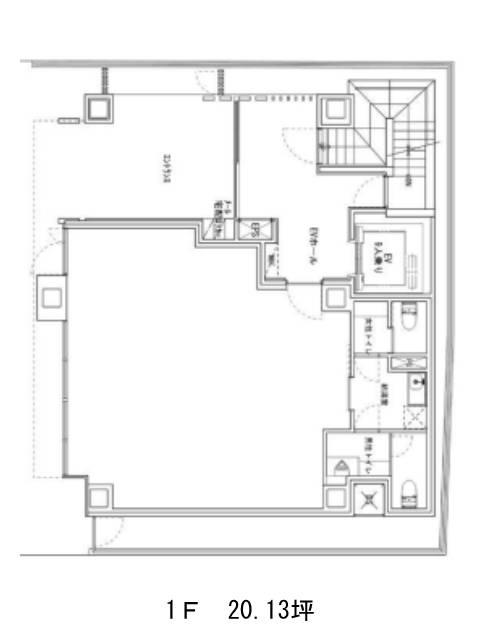
美倉ビルのテナント募集中区画
| 階数 | 面積 | 賃料(共益費含む) | 保証金 | 入居可能日 | 検討リスト | 詳細 |
|---|---|---|---|---|---|---|
| 地下1 | 28.02坪 | 601,029円/月(21,450円/坪) | 420万円 | 2026年5月中旬 |
…新着物件
アクセス
美倉ビルの物件情報
美倉ビル(千代田区神田美倉町)は新日本橋駅(6番出口)から徒歩4分の賃貸オフィスです。美倉ビルは新日本橋駅(6番出口)の他に神田駅(南口)徒歩6分、小伝馬町駅(出口2)徒歩6分で利用も可能です。

