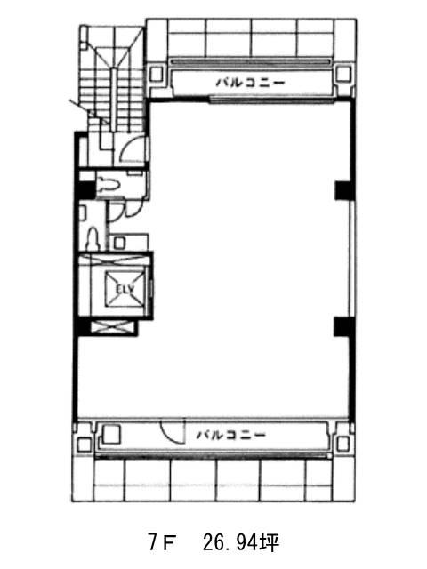
MHーKIYAビルのテナント募集中区画
| 階数 | 面積 | 賃料(共益費含む) | 保証金 | 入居可能日 | 検討リスト | 詳細 |
|---|---|---|---|---|---|---|
| 3 | 39.36坪 | 1,212,288円/月(30,800円/坪) | 661万円 | 相談 |
…新着物件
アクセス
MHーKIYAビルの物件情報
MHーKIYAビル(千代田区神田美倉町)は新日本橋駅(6番出口)から徒歩3分の賃貸オフィスです。MHーKIYAビルは新日本橋駅(6番出口)の他に神田駅(南口)徒歩5分、三越前駅(A10番出口)徒歩6分で利用も可能です。

