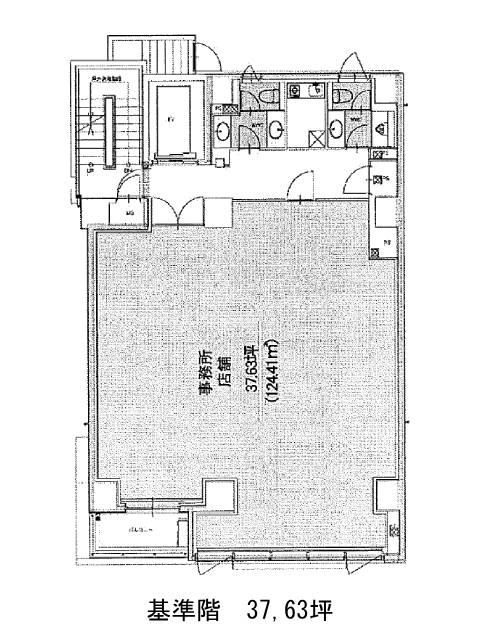
アツミビルのテナント募集中区画
| 階数 | 面積 | 賃料(共益費含む) | 保証金 | 入居可能日 | 検討リスト | 詳細 |
|---|---|---|---|---|---|---|
| 3 | 37.63坪 | 910,646円/月(24,200円/坪) | 496万円 | 2026年1月中旬 |
…新着物件
アクセス
アツミビルの物件情報
アツミビル(千代田区神田富山町)は岩本町駅(A1番出口)から徒歩3分の賃貸オフィスです。アツミビルは岩本町駅(A1番出口)の他に神田駅(3番出口)徒歩5分、秋葉原駅(5番出口)徒歩6分で利用も可能です。

