5階は現在募集がありません
1フロア募集区画あり

アツミビル 5階

前の写真 次の写真

物件概要

物件番号

413-00036-4

物件名

アツミビル

所在地

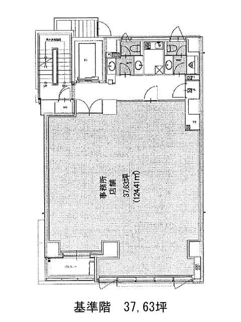
面積

37.63坪

賃料(共益費含)


入居日

募集終了

保証金

礼金

更新料

償却費

竣工

2024年3月

構造

RC

規模

地上10階

トイレ

男女別

空調

個別空調

エレベーター

セキュリティ

駐車場

耐震

新耐震基準

基準階天井高

空室延床面積

37.63坪

最寄駅

情報更新日

2026/01/14

アツミビルのテナント募集中区画

階数 面積 賃料(共益費含む) 保証金 入居可能日 検討リスト 詳細
3 37.63坪 910,646円/月(24,200円/坪) 496万円 2026年1月中旬
…新着物件

アクセス

アツミビルの物件情報

アツミビル(千代田区神田富山町)は岩本町駅(A1番出口)から徒歩3分の賃貸オフィスです。
アツミビルは岩本町駅(A1番出口)の他に神田駅(3番出口)徒歩5分、秋葉原駅(5番出口)徒歩6分で利用も可能です。

近隣のエリア・駅から探す