神田乗物町ビル 9階 901
物件概要
物件番号
415-00001-133物件名
神田乗物町ビル所在地
- 東京都千代田区神田北乗物町2-1-13
- アクセスマップ
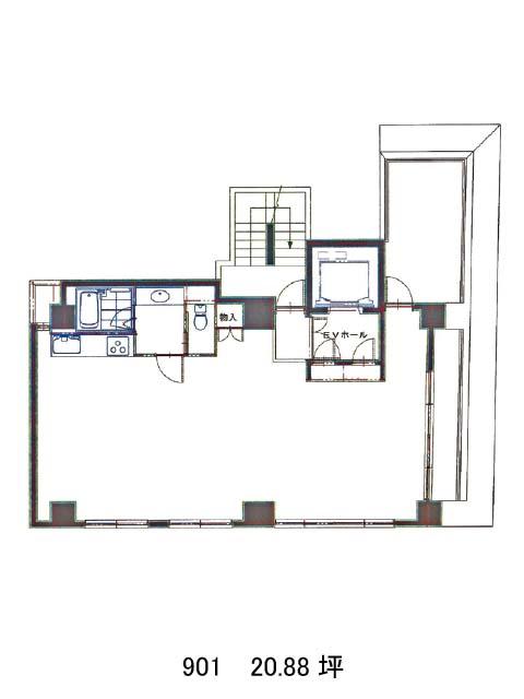
面積
20.88坪賃料(共益費含)
月額297,964円(14,270円/坪)
入居日
2025年12月下旬保証金
1,625,257円礼金
1ケ月更新料
新1ケ月償却費
2ケ月竣工
1985年3月構造
SRC規模
地上9階/地下3階トイレ
男女共用空調
エレベーター
有セキュリティ
駐車場
無耐震
新耐震基準基準階天井高
空室延床面積
20.88坪情報更新日
2025/11/12神田乗物町ビルのテナント募集中区画
| 階数 | 面積 | 賃料(共益費含む) | 保証金 | 入居可能日 | 検討リスト | 詳細 |
|---|---|---|---|---|---|---|
| 9 | 20.88坪 | 297,964円/月(14,270円/坪) | 162万円 | 2025年12月下旬 |
…新着物件
アクセス
神田乗物町ビルの物件情報
神田乗物町ビル(千代田区神田北乗物町)は岩本町駅(A5番出口)から徒歩4分の賃貸オフィスです。神田乗物町ビルは岩本町駅(A5番出口)の他に神田駅(東口)徒歩5分、新日本橋駅(8番出口)徒歩6分で利用も可能です。

