4階は現在募集がありません
青木ビル 4階


物件概要
青木ビルのテナント募集中区画
現在、空室がございません。
アクセス
青木ビルの物件情報
青木ビル(千代田区神田和泉町)は秋葉原駅(1番出口)から徒歩3分の賃貸オフィスです。
物件は昭和通りに面しています。1階にセブンイレブンの店舗テナントが入居していますので、物件を示す際の目印になるでしょう。外観はシックなグレーのタイル張りで落ち着いた印象です。
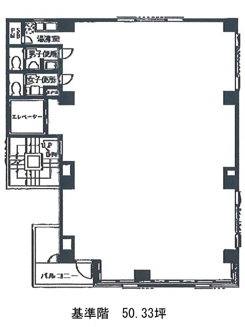
基準の貸室は約50坪の長方形に近い間取り。1基設置済みのエレベーターから執務室へはダイレクトインの仕様です。男女別トイレと湯沸室の水回りも室内にございますが、室内の端にまとめて配置されているため使い勝手は良好かと思います。
周辺は飲食店や販売店舗が充実しており利便性に優れているため、スタッフの方にも喜ばれそうな環境です。
青木ビルは秋葉原駅(1番出口)の他に岩本町駅(A4番出口)徒歩7分、仲御徒町駅(1番出口)徒歩8分で利用も可能です。