SRビルのテナント募集中区画
| 階数 | 面積 | 賃料(共益費含む) | 保証金 | 入居可能日 | 検討リスト | 詳細 |
|---|---|---|---|---|---|---|
| 4 | 35.26坪 | 698,148円/月(19,800円/坪) | 394万円 | 即 | ||
| 5 | 35.26坪 | 698,148円/月(19,800円/坪) | 394万円 | 即 |
…新着物件
アクセス
SRビルの物件情報
SRビル(千代田区鍛冶町)は神田駅(南口)から徒歩3分の賃貸オフィスです。
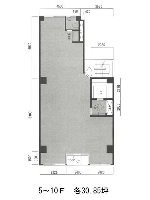
外観は艶のあるライトグレーの石造りをベースに、窓枠の部分にのみミントグリーンの縁があしらわれており、清潔感のあるデザイン。基準フロアは約30坪の規模で、トイレと給湯設備は室内に設置されています。OAフロア、機械警備導入済み。
SRビルは今川橋交差点すぐの立地で、1階には人気のステーキチェーン店が営業中で視認性に優れています。JR神田駅徒歩3分の距離感もポイント。周辺は飲食店や銀行支店、郵便局などが点在しており、利便性も申し分ないでしょう。
SRビルは神田駅(南口)の他に新日本橋駅(4番出口)徒歩4分、三越前駅(A10番出口)徒歩6分で利用も可能です。


