7階は現在募集がありません
2フロア募集区画あり

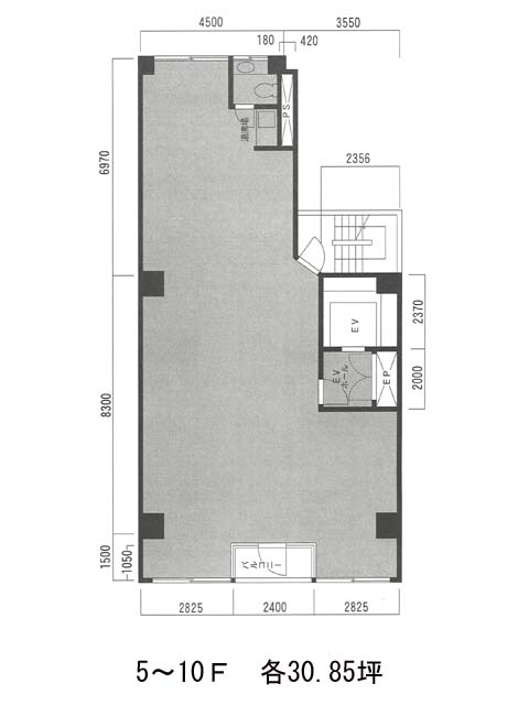
SRビル 7階

前の写真 次の写真

物件概要

物件番号

420-00039-60

物件名

SRビル

所在地

面積

30.85坪

賃料(共益費含)


入居日

募集終了

保証金

礼金

更新料

償却費

竣工

1990年7月

構造

SRC

規模

地上10階

トイレ

男女共用

空調

個別空調

エレベーター

セキュリティ

駐車場

耐震

新耐震基準

基準階天井高

2400mm

空室延床面積

70.52坪

最寄駅

情報更新日

2026/02/25

SRビルのテナント募集中区画

階数 面積 賃料(共益費含む) 保証金 入居可能日 検討リスト 詳細
4 35.26坪 698,148円/月(19,800円/坪) 394万円
5 35.26坪 698,148円/月(19,800円/坪) 394万円
…新着物件

SRビルのアクセス

SRビルの物件情報

SRビル(千代田区鍛冶町)は神田駅(南口)から徒歩3分の賃貸オフィスです。
外観は艶のあるライトグレーの石造りをベースに、窓枠の部分にのみミントグリーンの縁があしらわれており、清潔感のあるデザイン。基準フロアは約30坪の規模で、トイレと給湯設備は室内に設置されています。OAフロア、機械警備導入済み。
SRビルは今川橋交差点すぐの立地で、1階には人気のステーキチェーン店が営業中で視認性に優れています。JR神田駅徒歩3分の距離感もポイント。周辺は飲食店や銀行支店、郵便局などが点在しており、利便性も申し分ないでしょう。
SRビルは神田駅(南口)の他に新日本橋駅(4番出口)徒歩4分、三越前駅(A10番出口)徒歩6分で利用も可能です。

近隣のエリア・駅から探す