三井ビルのテナント募集中区画
| 階数 | 面積 | 賃料(共益費含む) | 保証金 | 入居可能日 | 検討リスト | 詳細 |
|---|---|---|---|---|---|---|
| 8 | 85.99坪 | 応相談(応相談) | 応相談 | 2026年3月上旬 |
…新着物件
三井ビルのアクセス
三井ビルの物件情報
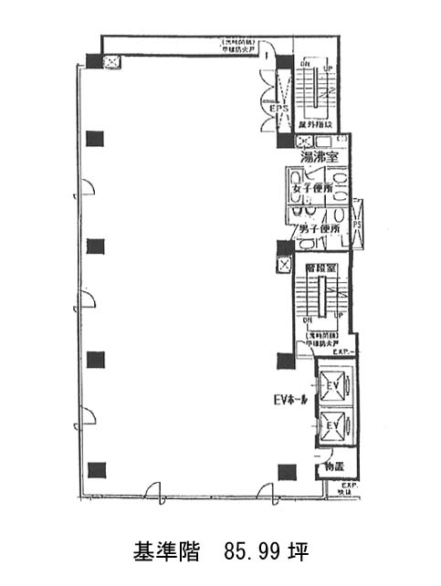
三井ビル(千代田区内神田)は大手町駅(A2番出口)から徒歩5分の賃貸オフィスです。1991年竣工、地上9階地下1階建てのビルです。グレーの外壁に、ガラス窓が並びスタイリッシュな外観をしています。基準階面積は85.99坪。貸室内は長方形で柱が中央に無く、オフィス家具の配置がしやすいでしょう。設備仕様として、室内にダイレクトインのEV2基・個別空調・OAフロア・貸室内の男女別トイレがそろいます。共用部がフロアの片側にまとまっており、動線がよいでしょう。二面採光で、室内に十分な採光がとりいれられるでしょう。三井ビルは大手町駅(A2番出口)の他に神田駅(南口)徒歩6分、小川町駅(A6番出口)徒歩8分で利用も可能です。

