7階は現在募集がありません
1フロア募集区画あり

三井ビル 7階

前の写真 次の写真

物件概要

物件番号

423-00111-70

物件名

三井ビル

所在地

面積

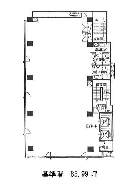
85.99坪

賃料(共益費含)


入居日

募集終了

保証金

礼金

更新料

償却費

竣工

1991年7月

構造

SRC

規模

地上8階/地下1階

トイレ

男女別

空調

個別空調

エレベーター

セキュリティ

駐車場

耐震

新耐震基準

基準階天井高

2450mm

空室延床面積

85.99坪

最寄駅

情報更新日

2026/01/23

三井ビルのテナント募集中区画

階数 面積 賃料(共益費含む) 保証金 入居可能日 検討リスト 詳細
8 85.99坪 応相談(応相談) 応相談 2026年3月上旬
…新着物件

三井ビルのアクセス

三井ビルの物件情報

三井ビル(千代田区内神田)は大手町駅(A2番出口)から徒歩5分の賃貸オフィスです。
1991年竣工、地上9階地下1階建てのビルです。グレーの外壁に、ガラス窓が並びスタイリッシュな外観をしています。基準階面積は85.99坪。貸室内は長方形で柱が中央に無く、オフィス家具の配置がしやすいでしょう。設備仕様として、室内にダイレクトインのEV2基・個別空調・OAフロア・貸室内の男女別トイレがそろいます。共用部がフロアの片側にまとまっており、動線がよいでしょう。二面採光で、室内に十分な採光がとりいれられるでしょう。
三井ビルは大手町駅(A2番出口)の他に神田駅(南口)徒歩6分、小川町駅(A6番出口)徒歩8分で利用も可能です。

近隣のエリア・駅から探す