冨士エレベータービルのテナント募集中区画
| 階数 | 面積 | 賃料(共益費含む) | 保証金 | 入居可能日 | 検討リスト | 詳細 |
|---|---|---|---|---|---|---|
| 2 | 61.85坪 | 1,156,595円/月(18,700円/坪) | 865万円 | 相談 |
…新着物件
アクセス
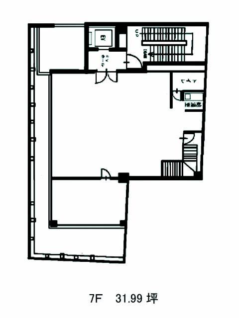
冨士エレベータービルの物件情報
冨士エレベータービル(千代田区内神田)は神田駅(南口)から徒歩3分の賃貸オフィスです。千代田区内神田に位置する地上7階・地下1階のSRC構造ビル。角地に建っているため、採光と通風にも恵まれた環境です。
周辺はビジネスと生活が交差する神田らしい環境で、日常的な利便性にも配慮しやすい立地です。
外観はグレーワントーンで落ち着いています。エレベーターは2基設置されており、朝夕の昇降もスムーズ。
貸室はフロアや募集によって規模が異なるため、詳細はお問い合わせください。冨士エレベータービルは神田駅(南口)の他に新日本橋駅(2番出口)徒歩7分、大手町駅(A2番出口)徒歩7分で利用も可能です。

