3階は現在募集がありません
1フロア募集区画あり

千代田西井ビル 3階

前の写真 次の写真

物件概要

物件番号

423-00171-30

物件名

千代田西井ビル

所在地

面積

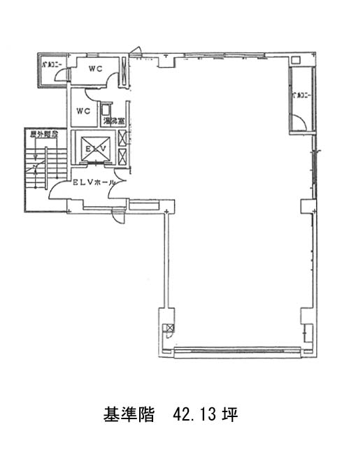
42.13坪

賃料(共益費含)


入居日

募集終了

保証金

礼金

更新料

償却費

竣工

1984年12月

構造

SRC

規模

地上8階

トイレ

男女別

空調

個別空調

エレベーター

セキュリティ

駐車場

耐震

新耐震基準

基準階天井高

2500mm

空室延床面積

42.13坪

最寄駅

情報更新日

2026/03/24

千代田西井ビルのテナント募集中区画

階数 面積 賃料(共益費含む) 保証金 入居可能日 検討リスト 詳細
5 42.13坪 834,174円/月(19,800円/坪) 758万円 2026年5月
…新着物件

千代田西井ビルのアクセス

千代田西井ビルの物件情報

千代田西井ビル(千代田区内神田)は小川町駅(B6番出口)から徒歩4分の賃貸オフィスです。
地上8階建てSRC造、1984年竣工のビルです。こげ茶色の壁面で、温かみのある外観をしています。新耐震基準に適合しています。基準階面積は42.13坪。支柱が中央に無い、すっきりとした室内はデスクなどの配置がしやすいでしょう。設備仕様として、EV1基・個別空調・OAフロア・男女別トイレがそろいます。セキュリティは機械警備が導入されています。1階は軽飲食相談可能で、オフィスワーカーの多いエリアでのビジネスチャンスが広がるでしょう。
千代田西井ビルは小川町駅(B6番出口)の他に新御茶ノ水駅(B6番出口)徒歩4分、淡路町駅(A6番出口)徒歩4分で利用も可能です。

近隣のエリア・駅から探す