千代田西井ビル 7階
物件概要
物件番号
423-00171-50物件名
千代田西井ビル所在地
- 東京都千代田区内神田1-15-11
- アクセスマップ
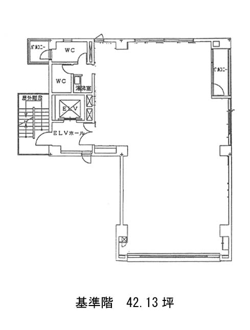
面積
42.13坪賃料(共益費含)
月額695,145円(16,500円/坪)
入居日
即保証金
5,055,600円礼金
なし更新料
なし償却費
1ケ月竣工
1984年12月構造
SRC規模
地上8階トイレ
男女別空調
個別空調エレベーター
有セキュリティ
有駐車場
無耐震
新耐震基準基準階天井高
2500mm空室延床面積
42.13坪情報更新日
2025/12/24千代田西井ビルのテナント募集中区画
| 階数 | 面積 | 賃料(共益費含む) | 保証金 | 入居可能日 | 検討リスト | 詳細 |
|---|---|---|---|---|---|---|
| 7 | 42.13坪 | 695,145円/月(16,500円/坪) | 505万円 | 即 |
…新着物件
アクセス
千代田西井ビルの物件情報
千代田西井ビル(千代田区内神田)は小川町駅(B6番出口)から徒歩4分の賃貸オフィスです。地上8階建てSRC造、1984年竣工のビルです。こげ茶色の壁面で、温かみのある外観をしています。新耐震基準に適合しています。基準階面積は42.13坪。支柱が中央に無い、すっきりとした室内はデスクなどの配置がしやすいでしょう。設備仕様として、EV1基・個別空調・OAフロア・男女別トイレがそろいます。セキュリティは機械警備が導入されています。1階は軽飲食相談可能で、オフィスワーカーの多いエリアでのビジネスチャンスが広がるでしょう。千代田西井ビルは小川町駅(B6番出口)の他に新御茶ノ水駅(B6番出口)徒歩4分、淡路町駅(A6番出口)徒歩4分で利用も可能です。

