千代田西井ビルのテナント募集中区画
| 階数 | 面積 | 賃料(共益費含む) | 保証金 | 入居可能日 | 検討リスト | 詳細 |
|---|---|---|---|---|---|---|
| 5 | 42.13坪 | 834,174円/月(19,800円/坪) | 758万円 | 2026年5月 |
…新着物件
千代田西井ビルのアクセス
千代田西井ビルの物件情報
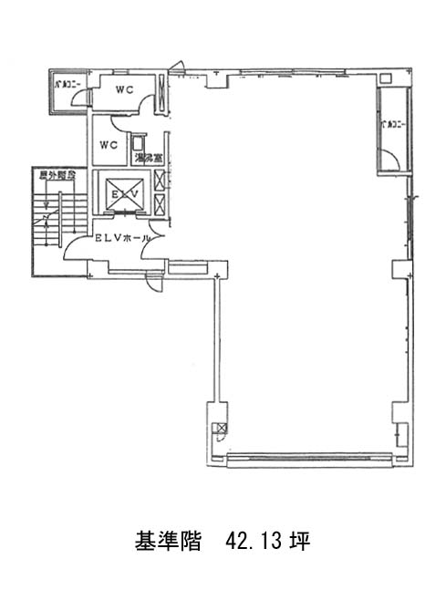
千代田西井ビル(千代田区内神田)は小川町駅(B6番出口)から徒歩4分の賃貸オフィスです。地上8階建てSRC造、1984年竣工のビルです。こげ茶色の壁面で、温かみのある外観をしています。新耐震基準に適合しています。基準階面積は42.13坪。支柱が中央に無い、すっきりとした室内はデスクなどの配置がしやすいでしょう。設備仕様として、EV1基・個別空調・OAフロア・男女別トイレがそろいます。セキュリティは機械警備が導入されています。1階は軽飲食相談可能で、オフィスワーカーの多いエリアでのビジネスチャンスが広がるでしょう。千代田西井ビルは小川町駅(B6番出口)の他に新御茶ノ水駅(B6番出口)徒歩4分、淡路町駅(A6番出口)徒歩4分で利用も可能です。

