8階は現在募集がありません
1フロア募集区画あり

いちご内神田ビル 8階

前の写真 次の写真

物件概要

物件番号

423-00270-80

物件名

いちご内神田ビル

所在地

面積

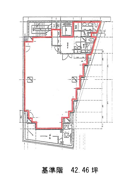
42.46坪

賃料(共益費含)


入居日

募集終了

保証金

礼金

更新料

償却費

竣工

1989年11月

構造

SRC

規模

地上10階/地下1階

トイレ

男女別

空調

個別空調

エレベーター

セキュリティ

駐車場

耐震

新耐震基準

基準階天井高

空室延床面積

42.46坪

最寄駅

情報更新日

2026/03/13

いちご内神田ビルのテナント募集中区画

階数 面積 賃料(共益費含む) 保証金 入居可能日 検討リスト 詳細
4 42.46坪 応相談(応相談) 応相談 2026年7月上旬
…新着物件

いちご内神田ビルのアクセス

いちご内神田ビルの物件情報

いちご内神田ビル(千代田区内神田)は神田駅(南口)から徒歩4分の賃貸オフィスです。
1989年竣工、大通りに面した角ビルのため視認性も抜群、貸室内は明るい雰囲気の地上10階建ての建物です。新耐震基準を満たしており、安心してご入居いただけます。基準階面積は約40坪。フリーアクセス床となっているので、配線しやすいフロアです。セキュリティは機械式警備が導入されている為、安心してお仕事に取り組めそうです。徒歩圏内にコンビニエンスストアがあり便利です。
いちご内神田ビルは神田駅(南口)の他に大手町駅(A2番出口)徒歩6分、新日本橋駅(2番出口)徒歩6分で利用も可能です。

近隣のエリア・駅から探す