2階 Aは現在募集がありません
1フロア募集区画あり

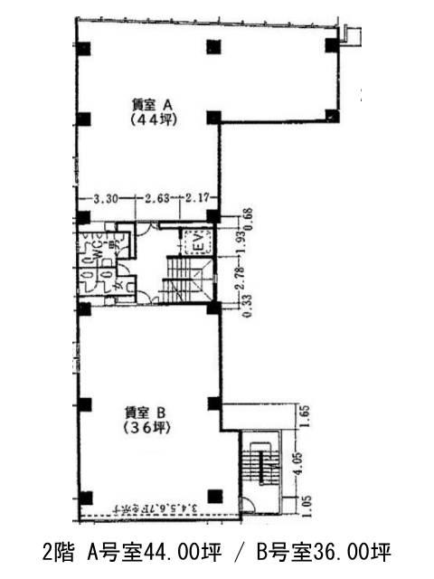
神田松楠ビル 2階 A

前の写真 次の写真

物件概要

物件番号

423-00271-44

物件名

神田松楠ビル

所在地

面積

44.00坪

賃料(共益費含)


入居日

募集終了

保証金

礼金

更新料

償却費

竣工

1994年5月

構造

S造

規模

地上9階

トイレ

男女別

空調

個別空調

エレベーター

セキュリティ

駐車場

耐震

新耐震基準

基準階天井高

2400mm

空室延床面積

33.00坪

最寄駅

情報更新日

2026/02/09

神田松楠ビルのテナント募集中区画

階数 面積 賃料(共益費含む) 保証金 入居可能日 検討リスト 詳細
4 33.00坪 671,550円/月(20,350円/坪) 594万円
…新着物件

神田松楠ビルのアクセス

神田松楠ビルの物件情報

神田松楠ビル(千代田区内神田)は神田駅(南口)から徒歩4分の賃貸オフィスです。
神田松楠ビルは神田駅(南口)の他に大手町駅(A2番出口)徒歩6分、新日本橋駅(2番出口)徒歩8分で利用も可能です。

近隣のエリア・駅から探す