平沢ビル 3階
物件概要
物件番号
423-00062-30物件名
平沢ビル所在地
- 東京都千代田区内神田2-3-14
- アクセスマップ
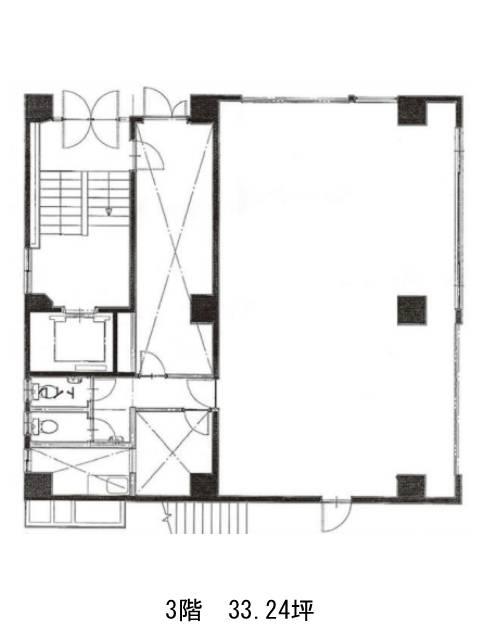
面積
33.24坪賃料(共益費含)
月額365,640円(11,000円/坪)
入居日
即保証金
797,760円礼金
なし更新料
新1ケ月償却費
なし竣工
1959年4月構造
RC規模
地上6階トイレ
男女別空調
個別空調エレベーター
有セキュリティ
駐車場
有耐震
旧耐震基準基準階天井高
4080(1F)mm空室延床面積
66.48坪情報更新日
2026/03/05平沢ビルのテナント募集中区画
| 階数 | 面積 | 賃料(共益費含む) | 保証金 | 入居可能日 | 検討リスト | 詳細 |
|---|---|---|---|---|---|---|
| 3 | 33.24坪 | 365,640円/月(11,000円/坪) | 79万円 | 即 | ||
| 5 | 33.24坪 | 365,640円/月(11,000円/坪) | 79万円 | 2026年4月上旬 |
…新着物件
平沢ビルのアクセス
平沢ビルの物件情報
平沢ビル(千代田区内神田)は神田駅(南口)から徒歩4分の賃貸オフィスです。平沢ビルは神田駅(南口)の他に大手町駅(A2番出口)徒歩6分、新日本橋駅(2番出口)徒歩7分で利用も可能です。

