白砂ビル永田町 2階
物件概要
物件番号
429-00178-1物件名
白砂ビル永田町所在地
- 東京都千代田区平河町2-10-4
- アクセスマップ
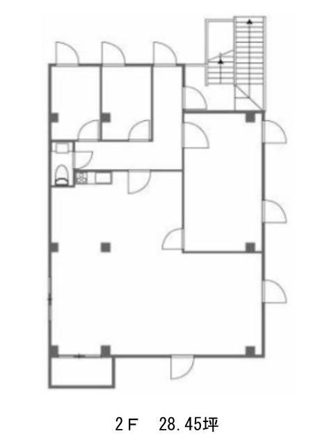
面積
28.45坪賃料(共益費含)
月額690,000円(24,253円/坪)
入居日
即保証金
4,391,058円礼金
1ケ月更新料
新1ケ月償却費
2ケ月竣工
2013年12月構造
S造規模
地上3階トイレ
男女共用空調
個別空調エレベーター
有セキュリティ
駐車場
無耐震
新耐震基準基準階天井高
空室延床面積
28.45坪情報更新日
2026/03/03白砂ビル永田町のテナント募集中区画
| 階数 | 面積 | 賃料(共益費含む) | 保証金 | 入居可能日 | 検討リスト | 詳細 |
|---|---|---|---|---|---|---|
| 2 | 28.45坪 | 690,000円/月(24,253円/坪) | 439万円 | 即 |
…新着物件
白砂ビル永田町のアクセス
白砂ビル永田町の物件情報
白砂ビル永田町(千代田区平河町)は半蔵門駅(1番出口)から徒歩5分の賃貸オフィスです。白砂ビル永田町は半蔵門駅(1番出口)の他に永田町駅(4番出口)徒歩6分、麹町駅(1番出口)徒歩8分で利用も可能です。

