地下1階は現在募集がありません
4フロア募集区画あり

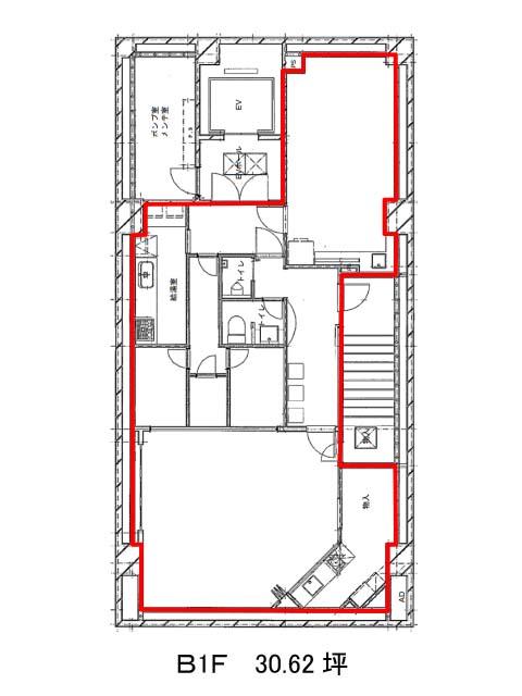
第2秩父屋ビル 地下1階

前の写真 次の写真

物件概要

物件番号

429-00018-10

物件名

第2秩父屋ビル

所在地

面積

30.62坪

賃料(共益費含)


入居日

募集終了

保証金

礼金

更新料

償却費

竣工

1989年11月

構造

SRC

規模

地上8階/地下1階

トイレ

男女別

空調

個別空調

エレベーター

セキュリティ

駐車場

耐震

新耐震基準

基準階天井高

2600mm

空室延床面積

115.91坪

最寄駅

情報更新日

2026/03/17

第2秩父屋ビルのテナント募集中区画

階数 面積 賃料(共益費含む) 保証金 入居可能日 検討リスト 詳細
2 32.34坪 693,693円/月(21,450円/坪) 640万円 2026年5月上旬
3 32.87坪 応相談(応相談) 応相談 相談
7 28.19坪 604,675円/月(21,450円/坪) 558万円 2026年4月中旬
8 22.51坪 482,839円/月(21,450円/坪) 445万円 2026年5月上旬
…新着物件

第2秩父屋ビルのアクセス

第2秩父屋ビルの物件情報

第2秩父屋ビル(千代田区平河町)は半蔵門駅(1番出口)から徒歩3分の賃貸オフィスです。
第2秩父屋ビルは半蔵門駅(1番出口)の他に麹町駅(1番出口)徒歩3分、永田町駅(9b番出口)徒歩7分で利用も可能です。

近隣のエリア・駅から探す