第2秩父屋ビル 2階
物件概要
物件番号
429-00018-30物件名
第2秩父屋ビル所在地
- 東京都千代田区平河町1-3-12
- アクセスマップ
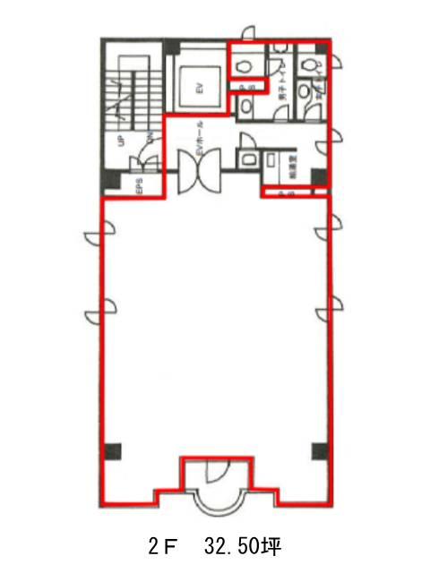
面積
32.34坪賃料(共益費含)
月額693,693円(21,450円/坪)
入居日
2026年4月上旬保証金
6,403,320円礼金
なし更新料
なし償却費
10%竣工
1989年11月構造
SRC規模
地上8階/地下1階トイレ
男女別空調
個別空調エレベーター
有セキュリティ
有駐車場
無耐震
新耐震基準基準階天井高
2600mm空室延床面積
115.91坪情報更新日
2026/02/06第2秩父屋ビルのテナント募集中区画
…新着物件
第2秩父屋ビルのアクセス
第2秩父屋ビルの物件情報
第2秩父屋ビル(千代田区平河町)は半蔵門駅(1番出口)から徒歩3分の賃貸オフィスです。第2秩父屋ビルは半蔵門駅(1番出口)の他に麹町駅(1番出口)徒歩3分、永田町駅(9b番出口)徒歩7分で利用も可能です。

