WORK VILLA HIRAKAWACHO 6階新着
物件概要
物件番号
429-00084-50物件名
WORK VILLA HIRAKAWACHO所在地
- 東京都千代田区平河町1-6-8
- アクセスマップ
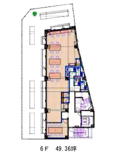
面積
49.36坪賃料(共益費含)
月額2,310,000円(46,799円/坪)
入居日
2026年5月上旬保証金
12,600,127円礼金
なし更新料
新1ケ月償却費
なし竣工
1988年3月構造
SRC規模
地上6階トイレ
男女別空調
個別空調エレベーター
有セキュリティ
有駐車場
無耐震
新耐震基準基準階天井高
3050mm空室延床面積
312.08坪情報更新日
2026/03/11WORK VILLA HIRAKAWACHOのテナント募集中区画
…新着物件
WORK VILLA HIRAKAWACHOのアクセス
WORK VILLA HIRAKAWACHOの物件情報
WORK VILLA HIRAKAWACHO(千代田区平河町)は半蔵門駅(1番出口)から徒歩4分の賃貸オフィスです。1988年竣工の6階建て、新耐震基準を満たす鉄骨鉄筋コンクリート造です。貝坂通りの角地に建ち、外観はベージュのタイル調でどっしりとした存在感が感じられます。貸室の形はフロアによって異なりますが、個別空調とOAフロアを備え、男女別トイレやエレベーターは室外にありますので、使い勝手が良いでしょう。周辺は落ち着いた雰囲気で、マンションやオフィスが多い環境です。隣に配送センターがありますので、宅配物が多い場合にも便利でしょう。また、駅からの道にコンビニがありますので、軽食やランチのお買いものに活用できます。WORK VILLA HIRAKAWACHOは半蔵門駅(1番出口)の他に麹町駅(1番出口)徒歩5分、永田町駅(9b番出口)徒歩6分で利用も可能です。

