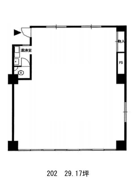
2階 202は現在募集がありません
シュロス浅草 2階 202
物件概要
シュロス浅草のテナント募集中区画
現在、空室がございません。
アクセス
シュロス浅草の物件情報
シュロス浅草(台東区寿)は蔵前駅(A5番出口)から徒歩4分の賃貸オフィスです。シュロス浅草は蔵前駅(A5番出口)の他に田原町駅(2番出口)徒歩4分、浅草駅(A1番出口)徒歩8分で利用も可能です。

