杉木立ビルのテナント募集中区画
| 階数 | 面積 | 賃料(共益費含む) | 保証金 | 入居可能日 | 検討リスト | 詳細 |
|---|---|---|---|---|---|---|
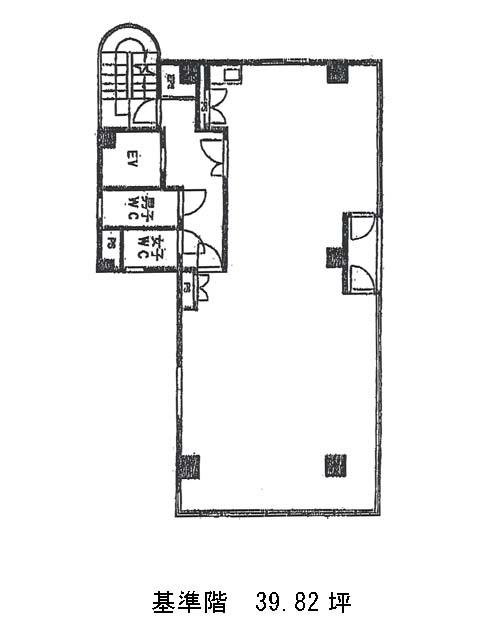
| 6 | 39.82坪 | 657,030円/月(16,500円/坪) | 477万円 | 2025年12月中旬 |
…新着物件
アクセス
杉木立ビルの物件情報
杉木立ビル(台東区浅草橋)は浅草橋駅(西口)から徒歩2分の賃貸オフィスです。杉木立ビルは浅草橋駅(西口)の他に馬喰町駅(6番出口)徒歩8分、秋葉原駅(1番出口)徒歩9分で利用も可能です。

