5階は現在募集がありません
1フロア募集区画あり

杉木立ビル 5階

前の写真 次の写真

物件概要

物件番号

559-00023-30

物件名

杉木立ビル

所在地

面積

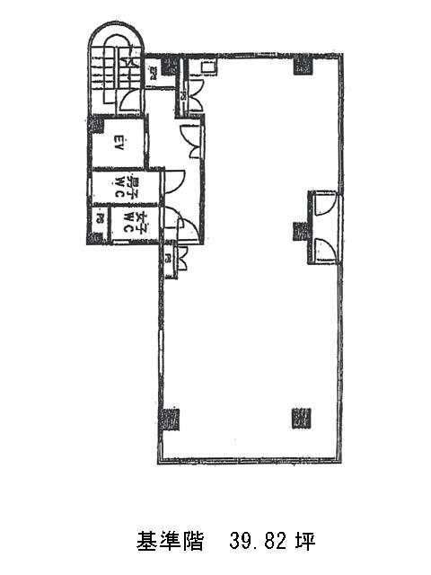
39.82坪

賃料(共益費含)


入居日

募集終了

保証金

礼金

更新料

償却費

竣工

1986年3月

構造

SRC

規模

地上8階

トイレ

男女別

空調

エレベーター

セキュリティ

駐車場

耐震

新耐震基準

基準階天井高

空室延床面積

39.82坪

最寄駅

情報更新日

2025/11/07

杉木立ビルのテナント募集中区画

階数 面積 賃料(共益費含む) 保証金 入居可能日 検討リスト 詳細
6 39.82坪 657,030円/月(16,500円/坪) 477万円 2025年12月中旬
…新着物件

アクセス

杉木立ビルの物件情報

杉木立ビル(台東区浅草橋)は浅草橋駅(西口)から徒歩2分の賃貸オフィスです。
杉木立ビルは浅草橋駅(西口)の他に馬喰町駅(6番出口)徒歩8分、秋葉原駅(1番出口)徒歩9分で利用も可能です。

近隣のエリア・駅から探す