4階は現在募集がありません
2フロア募集区画あり

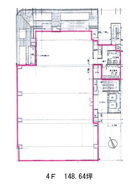
ISM秋葉原 4階

前の写真 次の写真

物件概要

物件番号

561-00500-7

物件名

ISM秋葉原

所在地

面積

148.64坪

賃料(共益費含)


入居日

募集終了

保証金

礼金

更新料

償却費

竣工

1988年9月

構造

SRC

規模

地上7階/地下1階

トイレ

男女別

空調

エレベーター

セキュリティ

駐車場

耐震

新耐震基準

基準階天井高

2520mm

空室延床面積

261.91坪

最寄駅

情報更新日

2026/03/11

ISM秋葉原のテナント募集中区画

階数 面積 賃料(共益費含む) 保証金 入居可能日 検討リスト 詳細
2 99.57坪 2,300,065円/月(23,100円/坪) 1,672万円 2026年8月上旬
3 162.34坪 3,750,054円/月(23,100円/坪) 2,727万円 2026年8月上旬
…新着物件

ISM秋葉原のアクセス

ISM秋葉原の物件情報

ISM秋葉原(台東区台東)は秋葉原駅(1番出口)から徒歩8分の賃貸オフィスです。
1988年竣工、地上7階、地下1階建ての鉄筋コンクリート造です。タイル張りで明るい色の外観ですので、清潔感が感じられます。病院や公園、小学校などが周辺にはありますので、整った周辺環境といえるでしょう。駅までの道にはコンビニや飲食店などもありますので、利便性も高いです。募集時期により、約40から140坪ほどの区画があります。設備面では、男女別トイレ、個別空調、機械警備と充実しております。エレベーターは2基ございます。
ISM秋葉原は秋葉原駅(1番出口)の他に仲御徒町駅(1番出口)徒歩9分、末広町駅(1番出口)徒歩10分で利用も可能です。

近隣のエリア・駅から探す