キクヤビルのテナント募集中区画
| 階数 | 面積 | 賃料(共益費含む) | 保証金 | 入居可能日 | 検討リスト | 詳細 |
|---|---|---|---|---|---|---|
| 5 | 90.67坪 | 1,496,055円/月(16,500円/坪) | 1,178万円 | 即 |
…新着物件
キクヤビルのアクセス
キクヤビルの物件情報
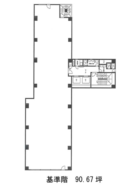
キクヤビル(台東区東上野)は新御徒町駅(A3番出口)から徒歩3分の賃貸オフィスです。1987年竣工、地上8階地下1階建ての鉄骨造のビルです。清洲橋通りに面しており、大きな窓があるので採光が望めそうです。外観はタイル張りのスタイリッシュな印象です。室内は縦長で約90坪。柱は壁側にあります。そのため、レイアウトしやすいでしょう。設備面は個別空調、OAフロア、男女別トイレとなっております。エレベーターは1基で、機械警備を導入しています。機械式立体駐車場がありますので、社用車等ご利用される際は便利です。キクヤビルは新御徒町駅(A3番出口)の他に稲荷町駅(2番出口)徒歩5分、上野駅(2番出口)徒歩9分で利用も可能です。

