キクヤビル 5階
物件概要
物件番号
565-00034-70物件名
キクヤビル所在地
- 東京都台東区東上野1-28-9
- アクセスマップ
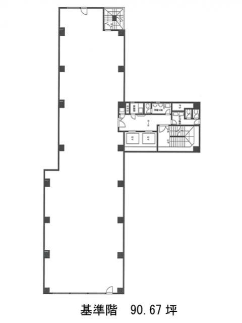
面積
90.67坪賃料(共益費含)
月額1,496,055円(16,500円/坪)
入居日
2026年1月中旬保証金
11,787,100円礼金
なし更新料
なし償却費
なし竣工
1987年11月構造
S造規模
地上8階/地下1階トイレ
男女別空調
個別空調エレベーター
有セキュリティ
有駐車場
有耐震
新耐震基準基準階天井高
空室延床面積
90.67坪情報更新日
2025/12/12キクヤビルのテナント募集中区画
| 階数 | 面積 | 賃料(共益費含む) | 保証金 | 入居可能日 | 検討リスト | 詳細 |
|---|---|---|---|---|---|---|
| 5 | 90.67坪 | 1,496,055円/月(16,500円/坪) | 1,178万円 | 2026年1月中旬 |
…新着物件
アクセス
キクヤビルの物件情報
キクヤビル(台東区東上野)は新御徒町駅(A3番出口)から徒歩3分の賃貸オフィスです。1987年竣工、地上8階地下1階建ての鉄骨造のビルです。清洲橋通りに面しており、大きな窓があるので採光が望めそうです。外観はタイル張りのスタイリッシュな印象です。室内は縦長で約90坪。柱は壁側にあります。そのため、レイアウトしやすいでしょう。設備面は個別空調、OAフロア、男女別トイレとなっております。エレベーターは1基で、機械警備を導入しています。機械式立体駐車場がありますので、社用車等ご利用される際は便利です。キクヤビルは新御徒町駅(A3番出口)の他に稲荷町駅(2番出口)徒歩5分、上野駅(2番出口)徒歩9分で利用も可能です。

