2階は現在募集がありません
1フロア募集区画あり

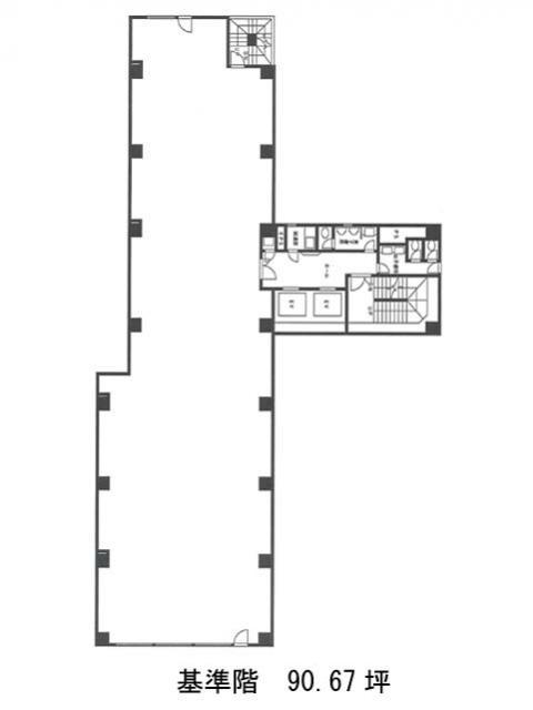
キクヤビル 2階

前の写真 次の写真

物件概要

物件番号

565-00034-30

物件名

キクヤビル

所在地

面積

90.67坪

賃料(共益費含)


入居日

募集終了

保証金

礼金

更新料

償却費

竣工

1987年11月

構造

S造

規模

地上8階/地下1階

トイレ

男女別

空調

個別空調

エレベーター

セキュリティ

駐車場

耐震

新耐震基準

基準階天井高

空室延床面積

90.67坪

最寄駅

情報更新日

2026/04/21

キクヤビルのテナント募集中区画

階数 面積 賃料(共益費含む) 保証金 入居可能日 検討リスト 詳細
5 90.67坪 1,496,055円/月(16,500円/坪) 1,178万円
…新着物件

キクヤビルのアクセス

キクヤビルの物件情報

キクヤビル(台東区東上野)は新御徒町駅(A3番出口)から徒歩3分の賃貸オフィスです。
1987年竣工、地上8階地下1階建ての鉄骨造のビルです。清洲橋通りに面しており、大きな窓があるので採光が望めそうです。外観はタイル張りのスタイリッシュな印象です。室内は縦長で約90坪。柱は壁側にあります。そのため、レイアウトしやすいでしょう。設備面は個別空調、OAフロア、男女別トイレとなっております。エレベーターは1基で、機械警備を導入しています。機械式立体駐車場がありますので、社用車等ご利用される際は便利です。
キクヤビルは新御徒町駅(A3番出口)の他に稲荷町駅(2番出口)徒歩5分、上野駅(2番出口)徒歩9分で利用も可能です。

近隣のエリア・駅から探す