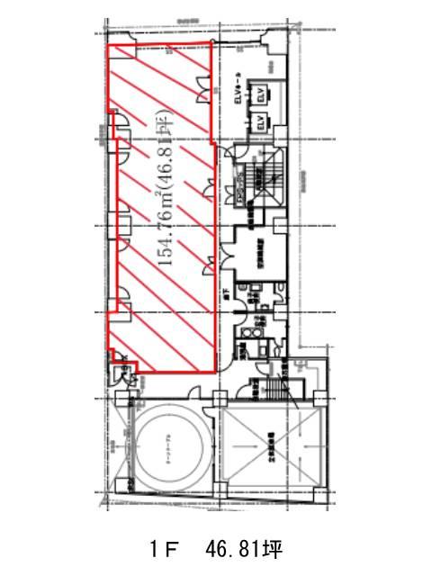
浅草ビル 1階新着

前の写真 次の写真

物件概要

物件番号

571-00017-34

物件名

浅草ビル

所在地

面積

46.81坪

賃料(共益費含)

:応相談
応相談

入居日

2026年9月上旬

保証金

応相談

礼金

なし

更新料

なし

償却費

なし

竣工

1988年9月

構造

SRC

規模

地上9階/地下1階

トイレ

男女別

空調

個別空調

エレベーター

セキュリティ

駐車場

耐震

新耐震基準

基準階天井高

2550mm

空室延床面積

46.81坪

最寄駅

情報更新日

2026/04/30

浅草ビルのテナント募集中区画

階数 面積 賃料(共益費含む) 保証金 入居可能日 検討リスト 詳細
1 46.81坪 応相談(応相談) 応相談 2026年9月上旬
…新着物件

浅草ビルのアクセス

浅草ビルの物件情報

浅草ビル(台東区雷門)は浅草駅(A2-b)から徒歩2分の賃貸オフィスです。
浅草ビルは浅草駅(A2-b)の他に田原町駅(3番出口)徒歩6分、蔵前駅(A6番出口)徒歩9分で利用も可能です。

近隣のエリア・駅から探す