銀座YOMIKOビル 8階 801新着
物件概要
物件番号
634-01022-72物件名
銀座YOMIKOビル所在地
- 東京都中央区銀座1-8-14
- アクセスマップ
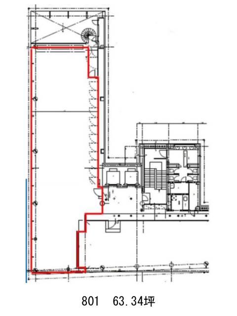
面積
63.34坪賃料(共益費含)
月額2,646,358円(41,780円/坪)
入居日
2026年11月上旬保証金
28,869,359円礼金
なし更新料
なし償却費
なし竣工
2000年9月構造
S造規模
地上9階/地下2階トイレ
不明空調
個別空調エレベーター
有セキュリティ
有駐車場
有耐震
新耐震基準基準階天井高
2600mm空室延床面積
63.34坪情報更新日
2026/04/02銀座YOMIKOビルのテナント募集中区画
| 階数 | 面積 | 賃料(共益費含む) | 保証金 | 入居可能日 | 検討リスト | 詳細 |
|---|---|---|---|---|---|---|
| 8 | 63.34坪 | 2,646,358円/月(41,780円/坪) | 2,886万円 | 2026年11月上旬 |
…新着物件
銀座YOMIKOビルのアクセス
銀座YOMIKOビルの物件情報
銀座YOMIKOビル(中央区銀座)は銀座一丁目駅(10番出口)から徒歩2分の賃貸オフィスです。2000年竣工、地上9階地下2階建てS造のビルです。ガラスに覆われた、スタイリッシュなデザインをしています。フロアはL字型ですが、共用部が一箇所に集まり使い勝手が良いでしょう。各貸室は支柱が中央に無く、デスクやオフィス家具の配置がしやすいでしょう。設備仕様として、EV・駐車場・個別空調・OAフロア・貸室外の男女別トイレがあります。セキュリティとして機械警備が導入されています。3・4階、5・6階はメゾネット貸しとなります。銀座YOMIKOビルは銀座一丁目駅(10番出口)の他に京橋駅(3番出口)徒歩4分、銀座駅(A13番出口)徒歩5分で利用も可能です。

