植松ビル 6階
物件概要
物件番号
634-00132-30物件名
植松ビル所在地
- 東京都中央区銀座7-8-5
- アクセスマップ
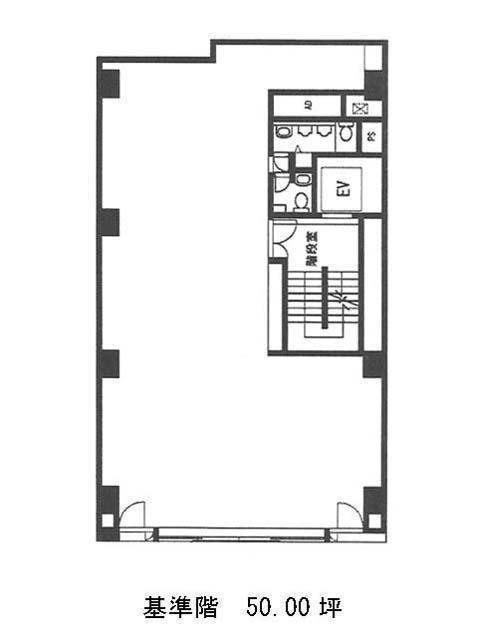
面積
50.00坪賃料(共益費含)
月額1,567,500円(31,350円/坪)
入居日
即保証金
14,400,000円礼金
なし更新料
なし償却費
10%竣工
1964年6月構造
SRC規模
地上10階/地下1階トイレ
男女別空調
個別空調エレベーター
有セキュリティ
有駐車場
無耐震
耐震補強済み基準階天井高
空室延床面積
50.00坪情報更新日
2026/02/19植松ビルのテナント募集中区画
| 階数 | 面積 | 賃料(共益費含む) | 保証金 | 入居可能日 | 検討リスト | 詳細 |
|---|---|---|---|---|---|---|
| 6 | 50.00坪 | 1,567,500円/月(31,350円/坪) | 1,440万円 | 即 |
…新着物件
植松ビルのアクセス
植松ビルの物件情報
植松ビル(中央区銀座)は銀座駅(A2番出口)から徒歩4分の賃貸オフィスです。中央通りに面して建てられているビルです。1964年竣工ですが1999年にリフォームしているので経年を感じさせません。外観は白と黒を基調としたグレード感のあるデザインで綺麗です。室内には男女別のトイレが設置されています。間取りは長方形に近いL字型です。機械警備も備え、耐震補強も済んでいるので安心・安全です。ビルのすぐ近くには銀座シックスがあり、買い物や食事が楽します。徒歩圏内には三越、松屋銀座などもあります。コンビニや郵便局、銀行なども揃っており、大変充実した環境でしょう。植松ビルは銀座駅(A2番出口)の他に新橋駅(1番出口)徒歩6分、東銀座駅(A1番出口)徒歩6分で利用も可能です。

