7階は現在募集がありません
1フロア募集区画あり

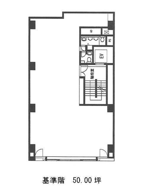
植松ビル 7階

前の写真 次の写真

物件概要

物件番号

634-00132-40

物件名

植松ビル

所在地

面積

50.00坪

賃料(共益費含)


入居日

募集終了

保証金

礼金

更新料

償却費

竣工

1964年6月

構造

SRC

規模

地上10階/地下1階

トイレ

男女別

空調

個別空調

エレベーター

セキュリティ

駐車場

耐震

耐震補強済み

基準階天井高

空室延床面積

50.00坪

最寄駅

情報更新日

2026/02/19

植松ビルのテナント募集中区画

階数 面積 賃料(共益費含む) 保証金 入居可能日 検討リスト 詳細
6 50.00坪 1,567,500円/月(31,350円/坪) 1,440万円
…新着物件

植松ビルのアクセス

植松ビルの物件情報

植松ビル(中央区銀座)は銀座駅(A2番出口)から徒歩4分の賃貸オフィスです。
中央通りに面して建てられているビルです。1964年竣工ですが1999年にリフォームしているので経年を感じさせません。外観は白と黒を基調としたグレード感のあるデザインで綺麗です。室内には男女別のトイレが設置されています。間取りは長方形に近いL字型です。機械警備も備え、耐震補強も済んでいるので安心・安全です。ビルのすぐ近くには銀座シックスがあり、買い物や食事が楽します。徒歩圏内には三越、松屋銀座などもあります。コンビニや郵便局、銀行なども揃っており、大変充実した環境でしょう。
植松ビルは銀座駅(A2番出口)の他に新橋駅(1番出口)徒歩6分、東銀座駅(A1番出口)徒歩6分で利用も可能です。

近隣のエリア・駅から探す