4階は現在募集がありません
藤和銀座1丁目ビル 4階
物件概要
藤和銀座1丁目ビルのテナント募集中区画
現在、空室がございません。
アクセス
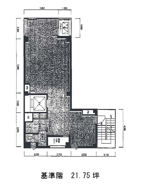
藤和銀座1丁目ビルの物件情報
藤和銀座一丁目ビル(中央区銀座)は新富町駅(1番出口)から徒歩3分の賃貸オフィスです。藤和銀座一丁目ビルは新富町駅(1番出口)の他に銀座一丁目駅(11番出口)徒歩5分、東銀座駅(A7番出口)徒歩5分で利用も可能です。

