エイコー銀座ビルのテナント募集中区画
| 階数 | 面積 | 賃料(共益費含む) | 保証金 | 入居可能日 | 検討リスト | 詳細 |
|---|---|---|---|---|---|---|
| B1-1 | 65.05坪 | 応相談(応相談) | 応相談 | 2026年4月 | ||
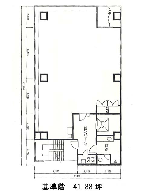
| 2 | 41.88坪 | 応相談(応相談) | 応相談 | 2026年4月 |
…新着物件
アクセス
エイコー銀座ビルの物件情報
エイコー銀座ビル(中央区銀座)は銀座一丁目駅(3番出口)から徒歩2分の賃貸オフィスです。地上7階地下2階建て、SRC造。並木通りと銀座柳通りが交わる角地に佇む本物件は、ブランドショップが入居する1階部分がアイキャッチとなり、視認性・印象ともに高ポイントです。
基準階は約42坪とコンパクト。貸室はやや変形ですが、直線的であるためレイアウト効率を保っています。OAフロア完備。
上品な石造りのエントランスと赤絨毯のエレベーターホールなど‥物件全体に上質な空気感が流れています。立地・見た目ともに“銀座らしさ”を体現しており、来訪者への印象付けにも一役買ってくれそうな一棟です。エイコー銀座ビルは銀座一丁目駅(3番出口)の他に有楽町駅(D9番出口)徒歩3分、銀座駅(C9番出口)徒歩5分で利用も可能です。

