エイコー銀座ビル 2階
物件概要
物件番号
634-00313-41物件名
エイコー銀座ビル所在地
- 東京都中央区銀座2-3-2
- アクセスマップ
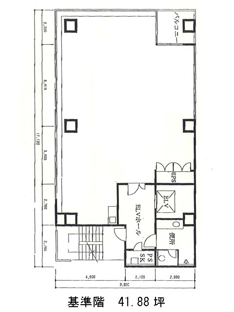
面積
41.88坪賃料(共益費含)
:応相談応相談
入居日
2026年4月保証金
応相談礼金
なし更新料
新1ケ月償却費
1ケ月竣工
1994年1月構造
SRC規模
地上7階/地下2階トイレ
男女共用空調
セントラルエレベーター
有セキュリティ
有駐車場
無耐震
新耐震基準基準階天井高
空室延床面積
106.93坪情報更新日
2026/03/11エイコー銀座ビルのテナント募集中区画
| 階数 | 面積 | 賃料(共益費含む) | 保証金 | 入居可能日 | 検討リスト | 詳細 |
|---|---|---|---|---|---|---|
| B1-1 | 65.05坪 | 応相談(応相談) | 応相談 | 2026年4月 | ||
| 2 | 41.88坪 | 応相談(応相談) | 応相談 | 2026年4月 |
…新着物件
エイコー銀座ビルのアクセス
エイコー銀座ビルの物件情報
エイコー銀座ビル(中央区銀座)は銀座一丁目駅(3番出口)から徒歩2分の賃貸オフィスです。地上7階地下2階建て、SRC造。並木通りと銀座柳通りが交わる角地に佇む本物件は、ブランドショップが入居する1階部分がアイキャッチとなり、視認性・印象ともに高ポイントです。
基準階は約42坪とコンパクト。貸室はやや変形ですが、直線的であるためレイアウト効率を保っています。OAフロア完備。
上品な石造りのエントランスと赤絨毯のエレベーターホールなど‥物件全体に上質な空気感が流れています。立地・見た目ともに“銀座らしさ”を体現しており、来訪者への印象付けにも一役買ってくれそうな一棟です。エイコー銀座ビルは銀座一丁目駅(3番出口)の他に有楽町駅(D9番出口)徒歩3分、銀座駅(C9番出口)徒歩5分で利用も可能です。

