深山ビル 7階
物件概要
物件番号
634-00475-90物件名
深山ビル所在地
- 東京都中央区銀座2-12-12
- アクセスマップ
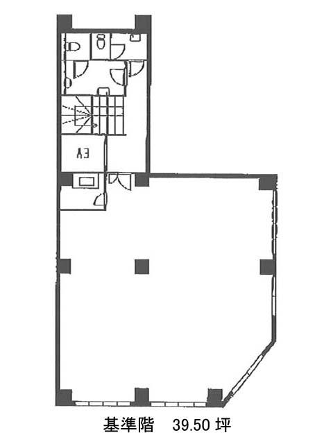
面積
39.50坪賃料(共益費含)
月額932,002円(23,595円/坪)
入居日
2026年3月中旬保証金
5,735,400円礼金
1ケ月更新料
なし償却費
なし竣工
1971年5月構造
SRC規模
地上9階/地下1階トイレ
男女別空調
個別空調エレベーター
有セキュリティ
有駐車場
無耐震
旧耐震基準基準階天井高
2480mm空室延床面積
39.50坪情報更新日
2026/01/06深山ビルのテナント募集中区画
| 階数 | 面積 | 賃料(共益費含む) | 保証金 | 入居可能日 | 検討リスト | 詳細 |
|---|---|---|---|---|---|---|
| 7 | 39.50坪 | 932,002円/月(23,595円/坪) | 573万円 | 2026年3月中旬 |
…新着物件
アクセス
深山ビルの物件情報
深山ビル(中央区銀座)は東銀座駅(A7番出口)から徒歩2分の賃貸オフィスです。深山ビルは東銀座駅(A7番出口)の他に銀座一丁目駅(11番出口)徒歩4分、銀座駅(A12番出口)徒歩5分で利用も可能です。

