GINZA M TOWER 4階
物件概要
GINZA M TOWERのテナント募集中区画
| 階数 | 面積 | 賃料(共益費含む) | 保証金 | 入居可能日 | 検討リスト | 詳細 |
|---|---|---|---|---|---|---|
| 2 | 56.90坪 | 応相談(応相談) | 応相談 | 即 | ||
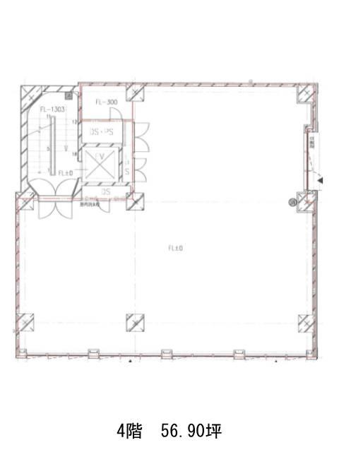
| 4 | 56.90坪 | 応相談(応相談) | 応相談 | 即 | ||
| 5 | 56.90坪 | 応相談(応相談) | 応相談 | 即 | ||
| 7 | 33.37坪 | 応相談(応相談) | 応相談 | 即 |
…新着物件
GINZA M TOWERのアクセス
GINZA M TOWERの物件情報
GINZA M TOWER(中央区銀座)は銀座駅(B3番出口)から徒歩2分の賃貸オフィスです。本物件が位置するのは、銀座の中でも屈指のブランドストリート「みゆき通り」沿い。名だたるラグジュアリーブランドが軒を連ね、街全体に洗練された空気が流れるこの立地は、来訪者にも強い印象を残します。企業イメージの向上にもつながる、まさに銀座らしいビジネス拠点です。
2025年に大規模リニューアルが完了しています。(耐震補強済み)基準階は約65坪の整形区画で、柱の配置を考慮しながら効率的なオフィスレイアウトが実現できます。GINZA M TOWERは銀座駅(B3番出口)の他に日比谷駅(A0番出口)徒歩6分、東銀座駅(A1番出口)徒歩6分で利用も可能です。

