4階は現在募集がありません
1フロア募集区画あり

登亭銀座ビル 4階

前の写真 次の写真

物件概要

物件番号

634-00594-40

物件名

登亭銀座ビル

所在地

面積

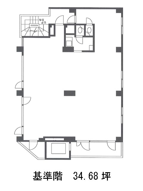
34.68坪

賃料(共益費含)


入居日

募集終了

保証金

礼金

更新料

償却費

竣工

1982年6月

構造

SRC

規模

地上8階/地下1階

トイレ

不明

空調

個別空調

エレベーター

セキュリティ

駐車場

耐震

新耐震基準

基準階天井高

空室延床面積

34.68坪

最寄駅

情報更新日

2026/05/14

登亭銀座ビルのテナント募集中区画

階数 面積 賃料(共益費含む) 保証金 入居可能日 検討リスト 詳細
2 34.68坪 686,664円/月(19,800円/坪) 624万円 2026年6月下旬
…新着物件

登亭銀座ビルのアクセス

登亭銀座ビルの物件情報

登亭銀座ビル(中央区銀座)は東銀座駅(A7番出口)から徒歩3分の賃貸オフィスです。
登亭銀座ビルは東銀座駅(A7番出口)の他に新富町駅(1番出口)徒歩4分、銀座一丁目駅(11番出口)徒歩5分で利用も可能です。

近隣のエリア・駅から探す