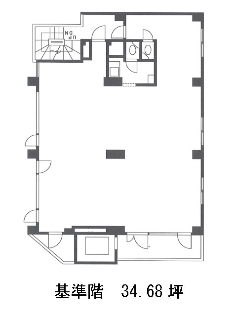
登亭銀座ビルのテナント募集中区画
| 階数 | 面積 | 賃料(共益費含む) | 保証金 | 入居可能日 | 検討リスト | 詳細 |
|---|---|---|---|---|---|---|
| 2 | 34.68坪 | 686,664円/月(19,800円/坪) | 624万円 | 2026年6月下旬 |
…新着物件
登亭銀座ビルのアクセス
登亭銀座ビルの物件情報
登亭銀座ビル(中央区銀座)は東銀座駅(A7番出口)から徒歩3分の賃貸オフィスです。登亭銀座ビルは東銀座駅(A7番出口)の他に新富町駅(1番出口)徒歩4分、銀座一丁目駅(11番出口)徒歩5分で利用も可能です。

