登亭銀座ビル 5階
物件概要
物件番号
634-00594-61物件名
登亭銀座ビル所在地
- 東京都中央区銀座3-13-2
- アクセスマップ
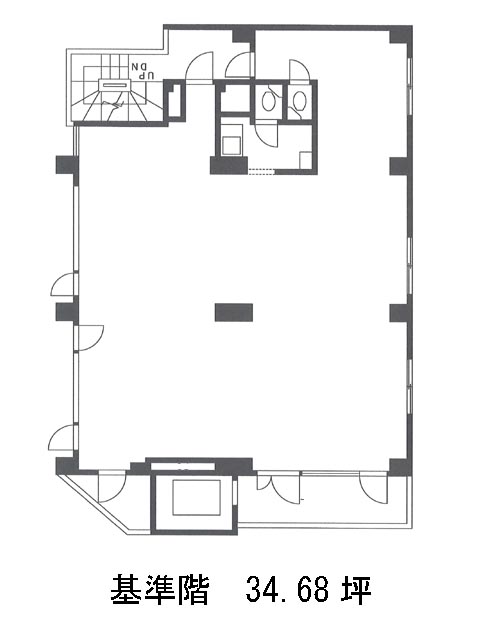
面積
34.68坪賃料(共益費含)
月額629,442円(18,150円/坪)
入居日
相談保証金
5,722,200円礼金
なし更新料
新1ケ月償却費
なし竣工
1982年6月構造
SRC規模
地上8階/地下1階トイレ
男女別空調
個別空調エレベーター
有セキュリティ
有駐車場
無耐震
新耐震基準基準階天井高
空室延床面積
34.68坪情報更新日
2025/11/21登亭銀座ビルのテナント募集中区画
| 階数 | 面積 | 賃料(共益費含む) | 保証金 | 入居可能日 | 検討リスト | 詳細 |
|---|---|---|---|---|---|---|
| 5 | 34.68坪 | 629,442円/月(18,150円/坪) | 572万円 | 相談 |
…新着物件
アクセス
登亭銀座ビルの物件情報
登亭銀座ビル(中央区銀座)は東銀座駅(A7番出口)から徒歩3分の賃貸オフィスです。登亭銀座ビルは東銀座駅(A7番出口)の他に新富町駅(1番出口)徒歩4分、銀座一丁目駅(11番出口)徒歩5分で利用も可能です。

