ラウンドクロス銀座2丁目 11階
物件概要
物件番号
634-00982-120物件名
ラウンドクロス銀座2丁目所在地
- 東京都中央区銀座2-11-8
- アクセスマップ
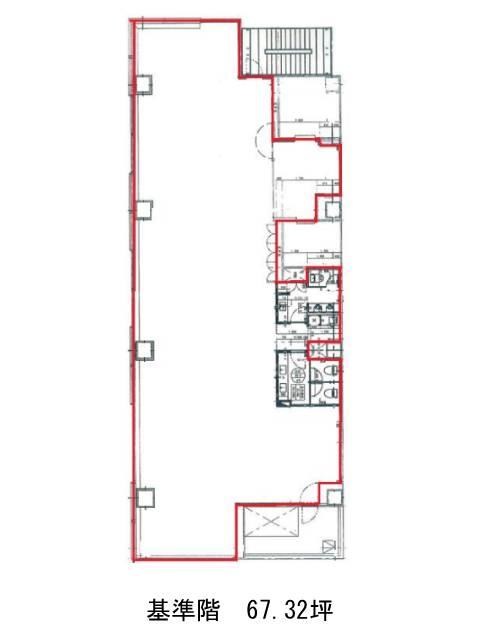
面積
67.32坪賃料(共益費含)
:応相談応相談
入居日
2026年6月上旬保証金
応相談礼金
なし更新料
なし償却費
なし竣工
2007年9月構造
S造規模
地上13階/地下1階トイレ
男女別空調
個別空調エレベーター
有セキュリティ
有駐車場
有耐震
新耐震基準基準階天井高
2800~3750mm空室延床面積
67.32坪情報更新日
2026/01/09ラウンドクロス銀座2丁目のテナント募集中区画
| 階数 | 面積 | 賃料(共益費含む) | 保証金 | 入居可能日 | 検討リスト | 詳細 |
|---|---|---|---|---|---|---|
| 11 | 67.32坪 | 応相談(応相談) | 応相談 | 2026年6月上旬 |
…新着物件
アクセス
ラウンドクロス銀座2丁目の物件情報
ラウンドクロス銀座2丁目(中央区銀座)は東銀座駅(A8番出口)から徒歩3分の賃貸オフィスです。地上13階建て、竣工2007年の物件ということもあり、上層階からの眺望はとても良好で、建物自体も綺麗です。基準階フロアは67坪で、ビル内のトイレは男女別となっており、駐車場もあるため、社用車を使う場合も便利です。また周辺には、コンビニや郵便局などがあり、特に飲食店が多く点在しているため、昼食や夕食時などでたくさんのお料理が楽しめるでしょう。ラウンドクロス銀座2丁目は東銀座駅(A8番出口)の他に銀座一丁目駅(11番出口)徒歩3分、銀座駅(A12番出口)徒歩5分で利用も可能です。

