13階は現在募集がありません
1フロア募集区画あり

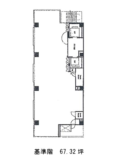
ラウンドクロス銀座2丁目 13階

前の写真 次の写真

物件概要

物件番号

634-00982-140

物件名

ラウンドクロス銀座2丁目

所在地

面積

67.32坪

賃料(共益費含)


入居日

募集終了

保証金

礼金

更新料

償却費

竣工

2007年9月

構造

S造

規模

地上13階/地下1階

トイレ

男女別

空調

個別空調

エレベーター

セキュリティ

駐車場

耐震

新耐震基準

基準階天井高

2800~3750mm

空室延床面積

41.82坪

最寄駅

情報更新日

2026/05/07

ラウンドクロス銀座2丁目のテナント募集中区画

階数 面積 賃料(共益費含む) 保証金 入居可能日 検討リスト 詳細
地下1 41.82坪 応相談(応相談) 1,756万円 2026年10月上旬
…新着物件

ラウンドクロス銀座2丁目のアクセス

ラウンドクロス銀座2丁目の物件情報

ラウンドクロス銀座2丁目(中央区銀座)は東銀座駅(A8番出口)から徒歩3分の賃貸オフィスです。
地上13階建て、竣工2007年の物件ということもあり、上層階からの眺望はとても良好で、建物自体も綺麗です。基準階フロアは67坪で、ビル内のトイレは男女別となっており、駐車場もあるため、社用車を使う場合も便利です。また周辺には、コンビニや郵便局などがあり、特に飲食店が多く点在しているため、昼食や夕食時などでたくさんのお料理が楽しめるでしょう。
ラウンドクロス銀座2丁目は東銀座駅(A8番出口)の他に銀座一丁目駅(11番出口)徒歩3分、銀座駅(A12番出口)徒歩5分で利用も可能です。

近隣のエリア・駅から探す