ザ・パークレックス新川のテナント募集中区画
| 階数 | 面積 | 賃料(共益費含む) | 保証金 | 入居可能日 | 検討リスト | 詳細 |
|---|---|---|---|---|---|---|
| 6 | 58.56坪 | 応相談(応相談) | 応相談 | 即 | ||
| 7 | 58.56坪 | 応相談(応相談) | 応相談 | 即 |
…新着物件
アクセス
ザ・パークレックス新川の物件情報
ザ・パークレックス新川(中央区新川)は八丁堀駅(B4番出口)から徒歩5分の賃貸オフィスです。外観はグレーを基調としたシックなデザイン。交差点に面する角地に位置しており、視認性・開放感ともに良好な立地です。
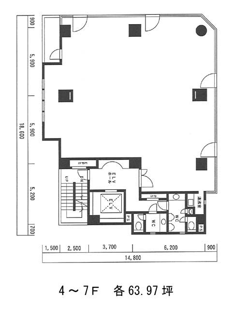
貸室は約64坪で、空間内には柱が適度に配置されています。そのため、多少工夫は必要ですが、レイアウトによっては空間のアクセントとして活かすことも可能です。
室内には給湯室が設けられており、男女別トイレは貸室外に配置されているため、来客時の動線もスムーズ。設備面では、個別空調・OAフロア・機械警備を備えており、日々の業務に安心して取り組める環境が整っています。
さらに1階にはコンビニが併設されており、軽食や日用品の購入に便利。周辺には飲食店やカフェも複数あり、ランチタイムの選択肢にも困りません。ザ・パークレックス新川は八丁堀駅(B4番出口)の他に茅場町駅(1番出口)徒歩11分、新富町駅(7番出口)徒歩12分で利用も可能です。

