9階は現在募集がありません
3フロア募集区画あり

RBM築地スクエア 9階

前の写真 次の写真

物件概要

物件番号

638-00109-100

物件名

RBM築地スクエア

所在地

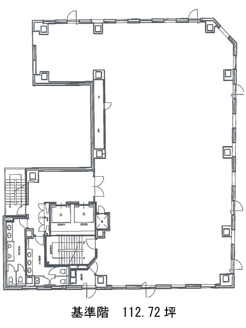
面積

112.72坪

賃料(共益費含)


入居日

募集終了

保証金

礼金

更新料

償却費

竣工

2003年11月

構造

S造

規模

地上9階/地下1階

トイレ

男女別

空調

個別空調

エレベーター

セキュリティ

駐車場

耐震

新耐震基準

基準階天井高

2600mm

空室延床面積

337.55坪

最寄駅

情報更新日

2026/03/10

RBM築地スクエアのテナント募集中区画

階数 面積 賃料(共益費含む) 保証金 入居可能日 検討リスト 詳細
2 112.11坪 応相談(応相談) 応相談 2026年4月
4 112.72坪 応相談(応相談) 応相談 2026年4月
5 112.72坪 応相談(応相談) 応相談 2026年4月
…新着物件

RBM築地スクエアのアクセス

RBM築地スクエアの物件情報

RBM築地スクエア(中央区新富)は八丁堀駅(出口)から徒歩4分の賃貸オフィスです。
RBM築地スクエアは八丁堀駅(出口)の他に新富町駅(5番出口)徒歩4分、築地駅(4番出口)徒歩6分で利用も可能です。

近隣のエリア・駅から探す