RBM築地スクエア 5階
物件概要
物件番号
638-00109-60物件名
RBM築地スクエア所在地
- 東京都中央区新富1-18-8
- アクセスマップ
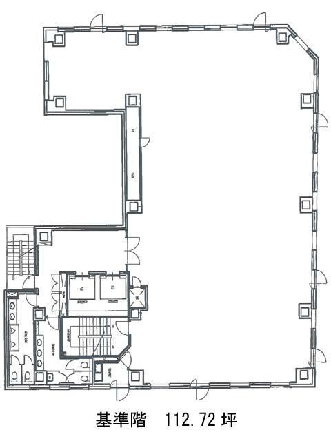
面積
112.72坪賃料(共益費含)
:応相談応相談
入居日
2026年4月保証金
応相談礼金
なし更新料
なし償却費
なし竣工
2003年11月構造
S造規模
地上9階/地下1階トイレ
男女別空調
個別空調エレベーター
有セキュリティ
駐車場
有耐震
新耐震基準基準階天井高
2600mm空室延床面積
337.55坪情報更新日
2026/02/06RBM築地スクエアのテナント募集中区画
| 階数 | 面積 | 賃料(共益費含む) | 保証金 | 入居可能日 | 検討リスト | 詳細 |
|---|---|---|---|---|---|---|
| 2 | 112.11坪 | 応相談(応相談) | 応相談 | 2026年4月 | ||
| 4 | 112.72坪 | 応相談(応相談) | 応相談 | 2026年4月 | ||
| 5 | 112.72坪 | 応相談(応相談) | 応相談 | 2026年4月 |
…新着物件
RBM築地スクエアのアクセス
RBM築地スクエアの物件情報
RBM築地スクエア(中央区新富)は八丁堀駅(出口)から徒歩4分の賃貸オフィスです。RBM築地スクエアは八丁堀駅(出口)の他に新富町駅(5番出口)徒歩4分、築地駅(4番出口)徒歩6分で利用も可能です。

