8階は現在募集がありません
新光第5ビル 8階
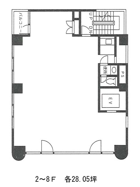
物件概要
新光第5ビルのテナント募集中区画
現在、空室がございません。
新光第5ビルのアクセス
新光第5ビルの物件情報
新光第5ビル(中央区新富)は新富町駅(5番出口)から徒歩2分の賃貸オフィスです。新光第5ビルは新富町駅(5番出口)の他に築地駅(4番出口)徒歩5分、八丁堀駅(出口)徒歩5分で利用も可能です。

