5階は現在募集がありません
樋泉ビル 5階
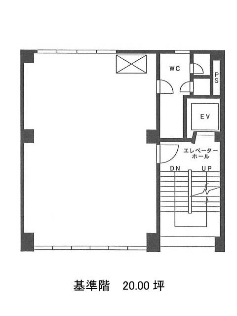
物件概要
樋泉ビルのテナント募集中区画
現在、空室がございません。
アクセス
樋泉ビルの物件情報
樋泉ビル(中央区築地)は新富町駅(出口)から徒歩3分の賃貸オフィスです。樋泉ビルは新富町駅(出口)の他に築地駅(4番出口)徒歩4分、東銀座駅(A7番出口)徒歩6分で利用も可能です。

